Beschrijving

**English text below**

Instapklaar wonen met uitzicht!
Dit volledig in 2022 gerenoveerde en lichte 4-kamer appartement van 86 m² biedt comfort, ruimte en een moderne afwerking. Gelegen op de 7e verdieping van een goed onderhouden complex met twee liften, beschikt deze woning over drie slaapkamers, een stijlvolle keuken met inbouwapparatuur, een strakke badkamer met inloopdouche en een balkon op de ochtendzon. Gelegen op eigen grond (géén erfpacht!) en met gratis parkeergelegenheid voor de deur. Energielabel C – dus ook op het gebied van energie zit je goed!

Omgeving: Rustig wonen met alles binnen handbereik, deze woning is gelegen in de groene en rustige wijk Waardhuizen, een fijne buurt met volop voorzieningen in de directe omgeving. Op loopafstand vind je het openbaar vervoer (tram en bus) en een kleinschalig winkelcentrum voor je dagelijkse boodschappen. Voor uitgebreider winkelaanbod liggen winkelcentra Groenhof en Middenhoven – met o.a. een grote Albert Heijn en Jumbo – op korte fietsafstand. In de buurt is er ruime keuze aan basis- en middelbare scholen, evenals de Internationale School, een golfbaan en diverse medische faciliteiten. Ook het levendige Stadshart Amstelveen, met haar uitgebreide winkel- en cultuuraanbod, ligt vlakbij.

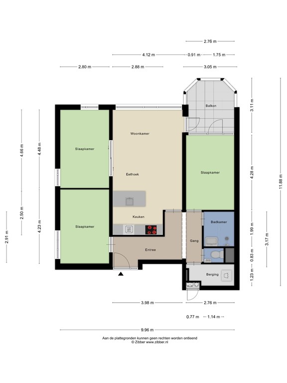
Indeling: Gelegen op de 7e verdieping betreed je het appartement via de entree/hal, voorzien van een video-intercom en toegang tot alle vertrekken. Hier vind je onder andere een praktische wasruimte en een modern, separaat toilet met fonteintje.
De lichte woonkamer biedt toegang tot het zonnige balkon, perfect voor een kop koffie in de ochtend. Aangrenzend vind je de woon en slaapkamer.
De open keuken is modern ingericht en uitgerust met diverse inbouwapparatuur, waaronder een inductiekookplaat, afzuigkap, koelkast, vaatwasser en combi-oven/magnetron – helemaal klaar om in te koken!
Het appartement beschikt over drie ruime slaap-werk kamers, waarvan 1 van de slaapkamers eveneens directe toegang heeft tot het balkon.
De stijlvolle badkamer is voorzien van een inloopdouche en een wastafelmeubel. Door het hele appartement ligt een prachtige vloer die zorgt voor een warme en verzorgde uitstraling.

Op de begane grond is een individuele berging aanwezig.

Bijzonderheden:
•	Bouwjaar 1980;
•	Woonoppervlak van 87 m² NEN2580 gemeten;
•	Gelegen op eigen grond, erfpacht is dus niet van toepassing;
•	Vereniging van eigenaars (V.v.E.) Logger 1: De V.v.E. is actief, gezond en de administratie, het financiële - en het technische beheer zijn uitbesteed aan PaaP V.v.E. Beheer. De maandelijkse servicekosten voor het appartement zijn momenteel
 € 188,67 per maand, dit is inclusief o.a. de opstalverzekering en de reservering voor het onderhoud. 
•	Het voorschot op de stookkosten bedraagt € 143,53 per maand (blokverwarming)
•	7e verdieping met schitterend panoramisch uitzicht; 
•	Energielabel C; 
•	Schitterend panoramisch uitzicht; 
•	Ruim en diep balkon, 8 m² (noord-oost); 
•	Lift(en) aanwezig; 
•	Individuele berging op de begane grond;
•	Volledig voorzien van dubbel glas; 
•	Voldoende (gratis) parkeerruimte rondom het complex; 
•	Oplevering in overleg

De verkoopinformatie is met grote zorgvuldigheid samengesteld doch voor de juistheid van de inhoud kunnen wij niet instaan en er kunnen derhalve geen rechten aan worden ontleend. De inhoud is puur informatief en mag niet worden beschouwd als een aanbod. Daar waar gesproken wordt over inhoud, oppervlakten of afmetingen moeten deze worden beschouwd als indicatief en als circa maten. U dient als koper zelf onderzoek te verrichten naar zaken die voor u van belang zijn. Wij raden u in dat verband aan uw eigen makelaar in te schakelen.

Move-in ready living with a view!
This fully renovated (2022) and bright 4-room apartment of 86 m² offers comfort, space, and a modern finish. Located on the 7th floor of a well-maintained apartment complex with two elevators, this home features three bedrooms, a stylish kitchen with built-in appliances, a modern bathroom with a walk-in shower, and a balcony that catches the morning sun. Situated on freehold land (no ground lease!) with free parking right in front. Energy label C – so it’s energy-efficient as well!

Surroundings:
Enjoy peaceful living with everything within easy reach. The apartment is located in the green and quiet Waardhuizen district — a pleasant neighborhood with plenty of amenities nearby. Within walking distance you’ll find public transport (tram and bus) and a small shopping center for daily groceries. For more extensive shopping options, the Groenhof and Middenhoven centers – featuring large Albert Heijn and Jumbo supermarkets – are just a short bike ride away.
There’s also a wide choice of primary and secondary schools in the area, including the International School of Amsterdam, as well as a golf course and several medical facilities. The buzzing Stadshart Amstelveen, with its excellent shopping, dining, and cultural offerings, is also close by.

Layout:
Situated on the 7th floor, you enter the apartment through the hallway equipped with a video intercom and access to all rooms. Here you’ll find a practical laundry room and a modern separate toilet with a small wash basin.
The bright living room provides access to the sunny balcony – the perfect spot for a morning coffee. Adjacent to it is the dining and sitting area.
The open kitchen has a modern design and is fully equipped with built-in appliances including an induction stove, extractor hood, refrigerator, dishwasher, and combi oven/microwave – ready for all your cooking needs.
The apartment has three spacious bedrooms/studies, one of which (a bedroom) also has direct access to the balcony.
The stylish bathroom features a walk-in shower and a washbasin with a vanity unit. Throughout the apartment lies a beautiful floor, giving the home a warm and well-finished appearance.
On the ground floor, there is a private storage room.

Features & details:
•	Built in 1980
•	Living area 87 m² (measured according to NEN2580)
•	Located on freehold land – no ground lease applies
•	Homeowners’ association (VvE) “Logger 1”: active and financially healthy
• Administration, financial and technical management are handled by PaaP VvE Beheer.
Current monthly service charges are approximately € 188,67 per month, including building insurance and maintenance reserve
•	Advance payment for heating (block heating) approximately € 143,53 per month
•	Located on the 7th floor with stunning panoramic views
•	Energy label C
•	Spacious and deep balcony (8 m², northeast-facing)
•	Two elevators available
•	Private storage unit on the ground floor
•	Fully equipped with double glazing
•	Ample free parking around the complex
•	Transfer by mutual agreement

The sales information has been compiled with great awareness, only we cannot guarantee the exactness of the content and therefore no rights can be derived from it.  
The content is purely informative and should not be considered as an offer. In regards to the content, areas or dimensions, these should be regarded as an indication and approximation.
As a purchaser, you must conduct your own research into the matters that are important to you. We recommend that you use your own estate agent for this area.

Kenmerken