Beschrijving

**English text below**

Licht, ruim en klaar voor de toekomst!
Op de vierde verdieping van een verzorgd appartementencomplex met een actieve VvE ligt dit royale en moderne appartement van ca. 70 m². Je geniet hier van een zonnig balkon op het zuiden én vrij uitzicht aan zowel de voor- als achterzijde – een zeldzame combinatie in de stad!
De woning beschikt over twee slaapkamers, met de mogelijkheid om eenvoudig een derde kamer te creëren. Extra opbergruimte is beschikbaar in zowel de onder- als bovenbouw, ideaal voor fietsen, koffers of andere spullen.
De Vereniging van Eigenaren is actief en toekomstgericht: er liggen plannen klaar voor verduurzaming van het complex, waarmee het wooncomfort en de energiezuinigheid verder zullen toenemen.
Het appartement is gelegen op erfpacht, waarvan de canon is afgekocht tot en met 2056. 

Omgeving:
Dit appartement is gelegen in een rustige, groene buurt van Amsterdam Slotervaart, met uitstekende verbindingen naar de stad en daarbuiten. Het centrum van Amsterdam is op fietsafstand, terwijl je met de auto in slechts 5 minuten op de A10 zit. Ook de openbaar vervoersmogelijkheden zijn hier goed geregeld, zodat je snel overal kunt komen.
Voor je dagelijkse boodschappen kun je terecht op het August Allebéplein, een groot winkelplein dat op loopafstand ligt. Voor ontspanning en recreatie kun je genieten van de nabijgelegen Sloterplas en het Rembrandpark, perfect voor wandelingen, sporten of een rustige middag in de natuur.
Daarnaast biedt de buurt voldoende voorzieningen, zoals winkels, scholen en openbaar vervoer, waardoor alles binnen handbereik is. 

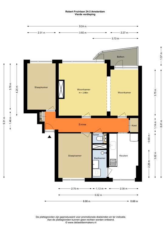
Indeling: 
Entrée, centraal is de hal gesitueerd. Aan de achterzijde bevindt zich een lichte woonkamer met toegang tot het zonnige balkon. Men heeft vanaf het balkon prachtig uitzicht over het groen. De woonkamer is extra ruim doordat er een voormalige slaapkamer bij de woonkamer is gecreëerd. Het is vrij eenvoudig om weer een 3e slaapkamer te maken. Zowel aan de voor als achterzijde bevindt zich een slaapkamer. De moderne keuken is voorzien van inbouwapparatuur. Vanuit de keuken toegang tot de moderne badkamer (2016) voorzien van wastafel, aansluiting wasmachine en douche. Het toilet is separaat. Door de gehele woning ligt een prachtige houtenvloer. 

Bijzonderheden:
•	Servicekosten bedragen € 204,81 per maand
•	Woonoppervlakte 70 m² (NEN2580 gemeten)
•	Heerlijk zonnig balkon op het zuiden 
•	Berging in de onder- en bovenbouw (gebruiksrecht)
•	Bouwjaar 1957
•	Energielabel C
•	Verwarming en warmwater middels eigen ketel Remeha 2016
•	2 slaapkamers met een mogelijkheid tot het creëren van een 3e slaapkamer
•	Oplevering in overleg

De verkoopinformatie is met grote zorgvuldigheid samengesteld doch voor de juistheid van de inhoud kunnen wij niet instaan en er kunnen derhalve geen rechten aan worden ontleend. De inhoud is puur informatief en mag niet worden beschouwd als een aanbod. Daar waar gesproken wordt over inhoud, oppervlakten of afmetingen moeten deze worden beschouwd als indicatief en als circa maten. U dient als koper zelf onderzoek te verrichten naar zaken die voor u van belang zijn. Wij raden u in dat verband aan uw eigen makelaar in te schakelen.

Bright, spacious, and ready for living!

Located on the fourth floor of a well-maintained apartment complex with an active homeowners’ association (VvE), this generous and modern apartment of approximately 70 m² offers plenty of space and light. Enjoy a sunny south-facing balcony and open views both at the front and back – a rare combination in the city!
The apartment features two bedrooms, with the option to easily create a third room. Additional storage is available in both the basement and attic – ideal for bicycles, suitcases, or other belongings.
The homeowners’ association is proactive and forward-looking, with plans in place to make the building more sustainable, which will further enhance living comfort and energy efficiency.
The property is located on leasehold land, with the ground rent paid off until 2056.

Surroundings:
This apartment is situated in a quiet, green part of Amsterdam Slotervaart, with excellent connections to the city and beyond. Amsterdam’s city center is within cycling distance, and the A10 ring motorway can be reached by car in just 5 minutes. Public transport options are also well arranged, allowing for quick travel throughout the city.
For daily shopping, the nearby August Allebéplein offers a large shopping plaza within walking distance. For leisure and recreation, you can enjoy the nearby Sloterplas lake and Rembrandtpark – perfect for walks, sports, or a relaxing afternoon in nature.
The neighborhood also offers ample amenities, such as shops, schools, and public transport, ensuring everything is close at hand.

Layout:
Entrance into a central hallway. At the rear, a bright living room with access to the sunny balcony, offering lovely green views. The living room is extra spacious as it includes what was formerly a bedroom. Creating a third bedroom again is quite simple. There are bedrooms at both the front and rear of the apartment.
The modern kitchen is equipped with built-in appliances and provides access to the updated bathroom (2016), which includes a sink, washing machine connection, and shower. The toilet is separate. A beautiful wooden floor is fitted throughout the entire apartment.

Highlights:
•	Monthly service charges: €204.81
•	Living area: 70 m² (measured according to NEN2580)
•	Lovely sunny south-facing balcony 
•	Storage in both basement and attic (usage rights)
•	Year of construction: 1957
•	Energy label: C
•	Heating and hot water via private Remeha boiler (2016)
•	2 bedrooms with the possibility to create a 3rd
•	Delivery in consultation

The sales information has been compiled with great awareness, only we cannot guarantee the exactness of the content and therefore no rights can be derived from it.  
The content is purely informative and should not be considered as an offer. In regards to the content, areas or dimensions, these should be regarded as an indication and approximation.
As a purchaser, you must conduct your own research into the matters that are important to you. We recommend that you use your own estate agent for this area.

Kenmerken