Description
In the popular Kleverpark neighbourhood, just a few minutes’ walk from Haarlem’s historic city centre and Central Station, you will find this charming mid-terrace house with a sunny south-facing garden. With 82 m² of living space, a spacious through-living room with high ceilings, and beautifully preserved stained-glass windows, this home offers a solid foundation to modernise entirely to your own taste. An ideal opportunity for anyone looking to transform a property with potential into a contemporary and comfortable home.
Surroundings:
The house is located in a quiet, child-friendly area with a full range of amenities within walking distance. In the immediate vicinity you’ll find several schools, local shops, and cosy cafés and lunch spots. Playground Burcht ter Cleeff and the nature garden De Kweektuin are literally around the corner, offering plenty of space for children to play outdoors. Haarlem Central Station and the historic city centre are easily reachable on foot or by bike. In addition, the Kennemerduinen dunes, the beaches of Bloemendaal and Zandvoort, and the main roads towards Amsterdam and Schiphol are all close by.
Layout:
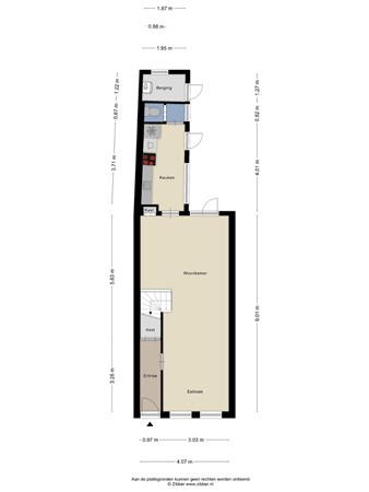
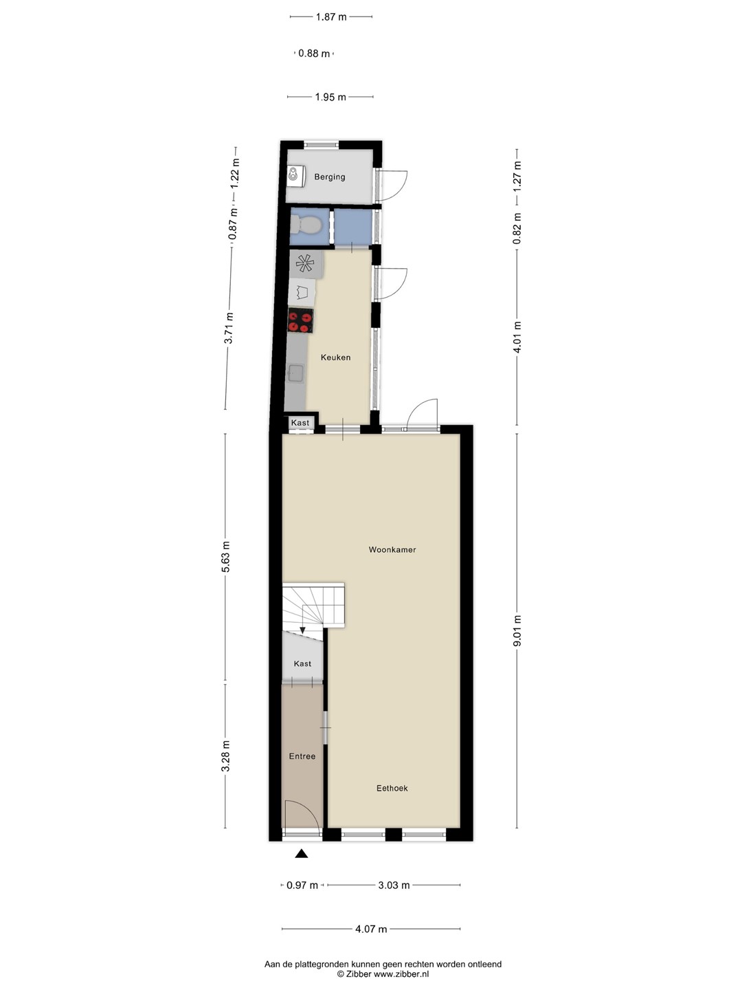
Ground floor: Entrance hall, meter cupboard, and storage cupboard. Spacious through-living room with high ceilings, built-in cupboard, and French doors leading to the rear garden with a brick storage shed. Simple kitchen and separate toilet. The kitchen also provides access to the south-facing garden and a small storage space stores the central heating boiler.
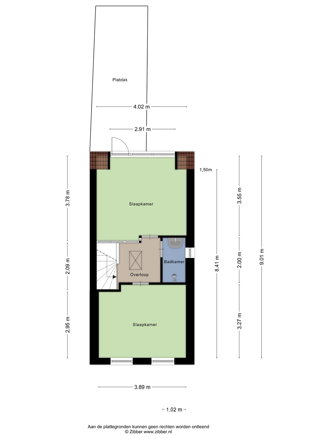
First floor: From the living room, an open staircase leads to the generous landing, two bedrooms, and the bathroom equipped with a shower and washbasin.
Attic: A loft ladder provides access to a spacious attic storage area with a roof window.
Details:
* Built around 1900
* 82 m² living area (measurement report available)
* Plot size 73 m²
* South-facing garden
* According to archive drawings, the foundation is “on steel” (shallow foundation)
* Heating and hot water via central heating boiler (owned)
* Energy label E
* Parking by permit
* Seller’s notary applies
* Completion in consultation
The sales information has been compiled with great awareness, only we cannot guarantee the exactness of the content and therefore no rights can be derived from it.
The content is purely informative and should not be considered as an offer. In regards to the content, areas or dimensions, these should be regarded as an indication and approximation.
As a purchaser, you must conduct your own research into the matters that are important to you. We recommend that you use your own estate agent for this area.