Beschrijving
**English text below**
Ruimte, licht en volop mogelijkheden – deze verrassend royale woning van circa 153 m² is gelegen op een perceel van 122 m² in een rustige, kindvriendelijke woonomgeving met vrij uitzicht. Op loopafstand bevinden zich het groengebied langs de Amstel en de fraaie Golfbaan Amsteldijk – een heerlijke omgeving voor wie houdt van rust, natuur en ruimte.
De woning beschikt over een zonnige achtertuin op het westen, twee balkons en een parkeerplaats op eigen terrein. Dankzij de royale opzet en praktische indeling biedt dit huis talloze gebruiksmogelijkheden. Denk bijvoorbeeld aan een combinatie van wonen en werken, met een praktijkruimte op de begane grond en het woongedeelte op de eerste en tweede verdieping. Ook het realiseren van één ruime eengezinswoning of het creëren van een kangoeroewoning met een zelfstandig appartement op de begane grond behoort tot de mogelijkheden.
Daarnaast beschikt de woning over energielabel C, wat zorgt voor een solide basis op het gebied van energiezuinigheid en wooncomfort – een prettige gedachte voor nu én in de toekomst.
Kortom: een veelzijdige woning met potentie, gelegen op een fijne locatie, klaar om geheel naar eigen wens te worden ingericht.
Omgeving:
De rustige en groene woonwijk Waardhuizen ligt in het zuiden van Amstelveen en grenst direct aan het landelijke poldergebied langs de Amstel, waar onder andere de fraaie golfbaan Golfbaan Amsteldijk is gelegen. Dit prachtige natuurgebied leent zich uitstekend voor wandel- en fietstochten.
Op korte afstand bevinden zich de winkelcentra Winkelcentrum Waardhuizen en Winkelcentrum Groenhof, met diverse grote supermarkten en een gevarieerd aanbod aan speciaalzaken. Ook aan de Van der Hooplaan vindt u verschillende winkels voor de dagelijkse boodschappen, zoals een bakker, slager en viswinkel.
In de directe omgeving zijn meerdere basis- en middelbare scholen, een internationale school, kinderopvanglocaties en uiteenlopende sportfaciliteiten te vinden, waaronder een zwembad, sportscholen, voetbalverenigingen en tennisclubs.
Het openbaar vervoer is uitstekend geregeld: haltes voor bus en de Amstelveenlijn (tram) bevinden zich op loopafstand en bieden snelle verbindingen naar onder meer Amsterdam, Schiphol en de stations Amsterdam Zuid en Bijlmer ArenA. Met de nabijgelegen A9 zijn ook de A2, A4 en de Ring A10 snel bereikbaar.
Rondom de woning is volop gratis parkeergelegenheid aanwezig. Daarnaast liggen het Amsterdamse Bos en het populaire winkelcentrum Stadshart Amstelveen op slechts enkele minuten afstand, waardoor u profiteert van zowel rust en natuur als stedelijke voorzieningen binnen handbereik.
Indeling:
Begane grond:
Via de ruime entree met meterkast komt u in de hal met toilet, trapkast en de opstelling van de cv-installatie. Vanuit de hal is een ruimte bereikbaar. Deze ruimte biedt talloze mogelijkheden: u kunt er een praktijk of kantoor aan huis van maken, een multifunctionele woonkamer creëren, of bijvoorbeeld een kangoeroewoning realiseren met een zelfstandig appartement op de begane grond.
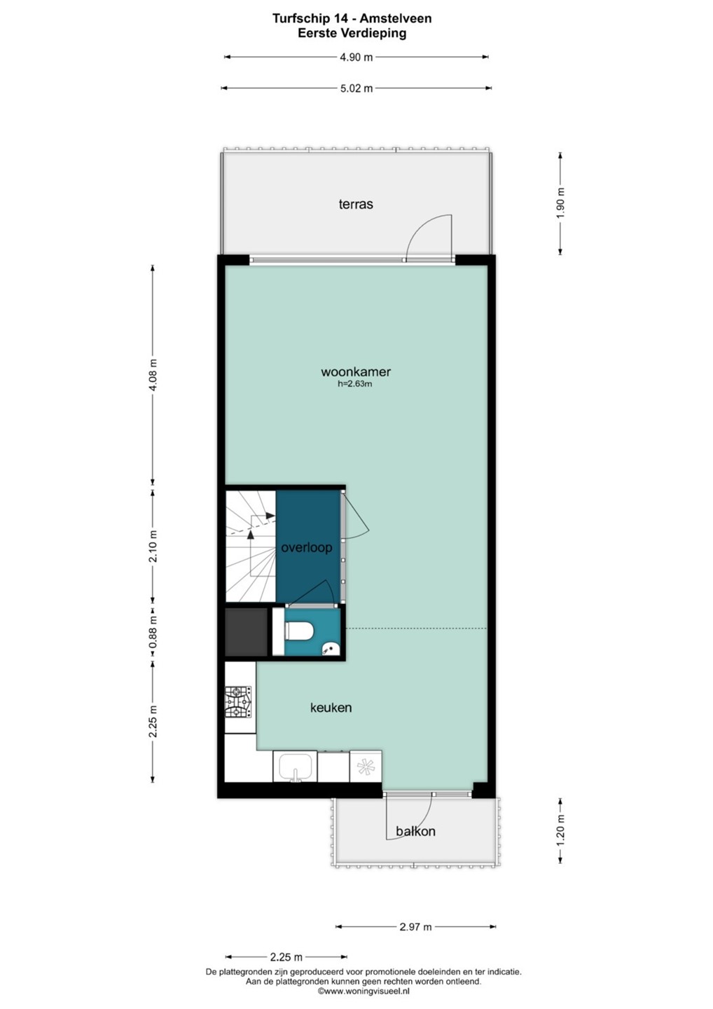
Eerste verdieping:
De overloop geeft toegang tot een tweede toilet en de ruime woonkamer aan de achterzijde, met een groot terras op het westen en een elektrisch zonnescherm. De open keuken aan de voorzijde is voorzien van moderne inbouwapparatuur en een balkon op het oosten, ideaal voor een kop koffie in de ochtendzon.
Tweede verdieping:
Deze verdieping valt op door het extra hoge plafond en de grote hoeveelheid licht. De kozijnen zijn vervangen door kunststof en voorzien van dubbel glas, wat zorgt voor extra comfort en energie-efficiëntie. Aan de voorzijde bevindt zich een ruime slaapkamer met een praktische kastenwand, terwijl aan de achterzijde twee slaapkamers zijn gesitueerd. De royale badkamer is uitgerust met een ligbad, toilet, wastafelmeubel en aansluitingen voor wasmachine en droger.
Bijzonderheden:
• 153m2 wonen (meetrapport aanwezig)
• 122m2 eigen grond
• 2 balkons op de 1e verdieping (West en Oosten)
• Tuin op het Westen
• Parkeerplaats op eigen terrein
• Verwarming en warmwater middels eigen CV ketel (Intergas)
• 2e verdieping in 2020 kozijnen en glas vervangen door kunststof en dubbelglas
• Oplevering in overleg
De verkoopinformatie is met grote zorgvuldigheid samengesteld doch voor de juistheid van de inhoud kunnen wij niet instaan en er kunnen derhalve geen rechten aan worden ontleend. De inhoud is puur informatief en mag niet worden beschouwd als een aanbod. Daar waar gesproken wordt over inhoud, oppervlakten of afmetingen moeten deze worden beschouwd als indicatief en als circa maten. U dient als koper zelf onderzoek te verrichten naar zaken die voor u van belang zijn. Wij raden u in dat verband aan uw eigen makelaar in te schakelen.
Space, light and endless possibilities – this surprisingly spacious home of approximately 153 m² is situated on a 122 m² plot of land in a quiet, child-friendly residential area with unobstructed views. Within walking distance you will find the green area along the Amstel River and the beautiful Amsteldijk Golf Course – an ideal setting for those who value peace, nature and space.
The property features a sunny west-facing backyard, two balconies, and a private on-site parking space. Thanks to its generous size and practical layout, the house offers numerous usage options. Maybe a combination of living and working, with a practice or office space on the ground floor and the living area on the first and second floors. Alternatively, it is possible to create one large family home, with a self-contained apartment on the ground floor.
In addition, the property has an energy label C, providing a solid foundation in terms of energy efficiency and living comfort – a reassuring thought for both now and the future.
In short: a versatile home with great potential, located in a pleasant area and ready to be fully customized to your own wishes.
Surroundings:
The quiet and green residential area of Waardhuizen is located in the southern part of Amstelveen and borders directly on the rural polder landscape along the Amstel River, where the beautiful Amsteldijk Golf Course is situated. This stunning nature area is ideal for walking and cycling.
Nearby are the shopping centers Winkelcentrum Waardhuizen and Winkelcentrum Groenhof, offering several large supermarkets and a wide range of specialty shops. Along Van der Hooplaan, you will also find various shops for daily groceries, such as a bakery, butcher and fish shop.
The immediate area offers multiple primary and secondary schools, an international school, childcare facilities and a wide variety of sports amenities, including a swimming pool, gyms, football clubs and tennis clubs.
Public transport connections are excellent: bus stops and the Amstelveen Line (tram) are within walking distance and provide fast connections to, among others, Amsterdam, Schiphol, and the stations Amsterdam Zuid and Bijlmer ArenA. Via the nearby A9 motorway, the A2, A4 and A10 Ring Road are also quickly accessible.
There is ample free parking around the property. In addition, the Amsterdamse Bos and the popular shopping center Stadshart Amstelveen are just a few minutes away, allowing you to enjoy both tranquility and nature as well as urban amenities within easy reach.
Layout:
Ground floor:
Through the spacious entrance with an electric cupboard, you enter the hallway with a toilet, under-stairs storage and the central heating system. From the hall, a separate room is accessible. This space offers numerous possibilities: it can be used as a home office or practice, a multifunctional living area, with access to the self-contained apartment on the ground floor.
First floor:
The landing provides access to a second toilet and the spacious living room at the rear, featuring a large west-facing terrace with an electric sunshade. The open-plan kitchen at the front is equipped with modern built-in appliances and has an east-facing balcony, perfect for enjoying a cup of coffee in the morning sun.
Second floor:
This floor stands out due to its extra-high ceiling and abundant natural light. The window frames have been replaced with pvc frames and double glazing, ensuring additional comfort and energy efficiency. At the front is a spacious bedroom with a practical built-in wardrobe, while two bedrooms are located at the rear. The generous bathroom is fitted with a bathtub, toilet, washbasin unit and connections for a washing machine and dryer.
Details:
* 153 m² of living space (measurement report available)
* 122 m² of private land
* Two balconies on the first floor (west and east)
* West-facing garden
* Private on-site parking space
* Heating and hot water via private central heating boiler (Intergas)
* Second floor window frames and glazing replaced with pvc frames and double glazing in 2020
* Delivery/transfer in consultation
The sales information has been compiled with great awareness, only we cannot guarantee the exactness of the content and therefore no rights can be derived from it.
The content is purely informative and should not be considered as an offer. In regards to the content, areas or dimensions, these should be regarded as an indication and approximation.
As a purchaser, you must conduct your own research into the matters that are important to you. We recommend that you use your own estate agent for this area.